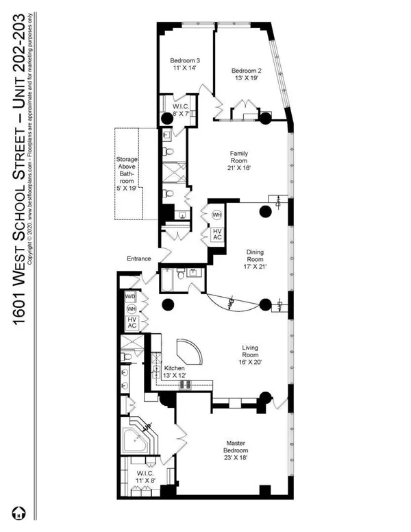
Ideally located by Southport Corridor, this one-of-a-kind soft loft offers approximately 3,200 sqft of living space with dramatic 14 ft ceilings, over sized windows with motorized blinds, and garage parking for two cars. The free-flowing living space includes generously proportioned living and dining rooms, and a huge kitchen/family room with SubZero, Bosch, and Thermador appliances. The huge master rivals a suite in a resort! Features include a spacious bedroom with 2-sided gas fireplace, a custom outfitted walk-in closet, and a marble spa bath with cove ceiling, dual vanity, 2-person whirlpool, separate steam shower, private commode and linen closet. There are two additional bedrooms and full baths. (One of the bedrooms has been soundproofed and is used as a music studio.) Other features include exposed brick, a cement ceiling, designer lighting and ceiling fans, ample closet space and storage, filtered water, and a full-size Samsung front loading w/d (with a hook-up in the second set).This home offers an ideal lifestyle as everything you need is within a couple of blocks. Commuting is easy with the Paulina Brown Line station close by. On your way home, pick up dinner at Whole Foods, Target or one of the many nearby restaurants, or pop into X-Sport Fitness for a workout. Tower Lofts is a professionally managed pet-friendly condominium with a secure lobby with key fob access, passenger elevators, a common roof deck with skyline views, and onsite storage.

Based on information submitted to the MLS GRID as of 1/15/2026 1:32 AM. All data is obtained from various sources and may not have been verified by broker or MLS GRID. Supplied Open House Information is subject to change without notice. All information should be independently reviewed and verified for accuracy. Properties may or may not be listed by the office/agent presenting the information.